1 Funciones de las amarras
La función básica de las amarras es la de mantener sujeto al buque en la posición asignada, con el mínimo de libertad en sus movimientos, de tal manera que pueda asegurar la posición estática respecto a puntos fijos de tierra y del fondo.
Las amarras tienen otras funciones complementarias tales como:
– establecer una relación de contacto con otro buque
– establecer una relación de contacto con tierra.
En el primer caso, las amarras son utilizadas como elementos de unión en operaciones de remolque, consumo o aligeramiento.
En el segundo caso, las amarras establecen un primer contacto con tierra cuando el buque se encuentra a una determinada distancia de esta y, a partir de entonces, el trabajo de las amarras, junto con otras asistencias (remolcadores, máquina, timón) llevarán al buque hasta dejarlo en su posición definitiva.
La naturaleza de las amarras puede ser de fibra o metálica. Si son de fibra, reciben el nombre de estachas y si son de naturaleza metálica, reciben el nombre de cables o alambres.
2 Tipos de amarras según su función
Atendiendo a la dirección que toman desde el punto de amarre a bordo hacia el muelle, encontramos los siguientes tipos de amarras:
- Largos. Cabos que llaman por la amura o aleta o sus inmediaciones hacia el muelle. Esta situación puede darse a proa o popa, por tanto, existen largos de proa y de popa. Serán lo más paralelos posible a la línea de crujía.
- Traveses. Son cabos que llaman por el través hacia el muelle; es decir, son perpendiculares al plano de crujía. Los traveses pueden estar situados a proa, popa o a lo largo del costado.
- Esprines. Son cabos que, partiendo de la proa o popa llaman hacia las direcciones opuestas. También tenemos esprín de proa y esprín de popa. Al igual que los largos, serán lo más paralelos posible a la línea de crujía.
- Coderas. Cabos de través dados por el costado contrario al atraque, cuya finalidad principal es ayudar en la maniobra de desatraque y aguantar al buque con tiempos duros de la banda contraria al atraque. Se suele dar con el auxilio de un bote, haciéndose firme a una boya, dolfin, etc. su naturaleza suele ser metálica, para que cuando no esté en uso se pueda arriar hasta el fondo y no interrumpa el paso de otras embarcaciones.
Las líneas de amarre serán lo más simétricas posible con respecto al punto medio del barco.
Las líneas de amarre serán de la misma longitud, diámetro y material.
El ángulo vertical ha de ser mínimo ya que este no contribuye a la efectividad del amarre y no debería de sobrepasar los 25º. La efectividad es proporcional al coseno del ángulo que la amarra forma con la horizontal que para 25º es de 0,91.

1 y 6. Largos de popa y proa
2 y 5. Traveses de popa y proa
3 y 4. Esprines de popa y proa
7 y 8. Coderas de popa y proa
Fig. 1: Disposición general de los cabos de amarre de un buque

Fig. 2: Ángulo vertical óptimo
3 Efectos que producen las amarras
El uso inteligente de las amarras contribuye en mucho a la rapidez y seguridad de las maniobras en puerto y por ello es importante conocer el efecto que produce sobre el buque el cobrar de una amarra con el barco parado o el hacerla trabajar cuando el barco lleva cierta arrancada.
Estudiemos el caso del buque de la figura 3 para entender el efecto de una amarra. El vector T representa la tensión aplicada en la gatera.
Fig. 3: Efecto de una amarra cualquiera
Si por el centro de gravedad G se trazan dos fuerzas T1 y T2 iguales y opuestas a T, y se descompone T2 en las componentes L y N de dirección paralela y normal respectivamente al plano de crujía, se pueden apreciar los siguientes efectos:
- El par TT2 trata de hacer evolucionar al buque girándolo en sentido de caer con su proa hacia tierra.
- La componente L tiende a hacer avanzar al buque
- La componente N tiende a desplazar lateralmente al buque acercándolo al muelle.
Resumiendo, se puede decir que por acción de una amarra se pueden obtener tres efectos: evolución, propulsión o frenado y el adicional de deriva o abatimiento, los cuales varían según el lugar del buque donde se aplican el esfuerzo, y la dirección en que trabaje la amarra.
El par TT2 será tanto mayor cuanto más cerca de una de las cabezas esté situada la gatera y cuanto más normal a crujía esté orientada la amarra.
El efecto de propulsión debida a la componente L será tanto mayor cuanto más próxima a la dirección de crujía trabaje la amarra. En el caso de que la amarra se situé en la cabeza opuesta al movimiento del buque, el efecto de la componente L será de frenado.
El efecto de abatimiento o de traslación lateral hacia el muelle será mayor cuanto más se acerque a 90º el ángulo que la amarra forma con el eje longitudinal del buque.
Con el buque parado y sin arrancada, cuando se vira de un cabo, sus efectos quedan determinados por las componentes longitudinal y transversal de la tensión T de cada cabo.
Fig. 4: Efecto de una amarra cualquiera en un buque parado y sin arrancada
3.1 Efecto combinado al virar los largos
En este caso se generan dos esfuerzos por cabeza: uno transversal hacia el muelle y otro longitudinal hacia donde llama el cabo. Es decir, al virar de los largos estos imprimen movimiento hacia proa o popa (según el largo que se vire) y movimiento hacia el muelle. Si viramos de los esprines, el de proa imprime movimiento hacia popa y hacia el muelle. El de popa imprime movimiento hacia proa y hacia el muelle. La resultante de los traveses tiene solo componente hacia el muelle.
De todo esto se pueden sacar una serie de conclusiones tales como las siguientes:
Con el buque paralelo al muelle, si viramos del largo de proa y del de popa al mismo tiempo y con la misma fuerza, la componente longitudinal de ambos queda anulada. Solo actúa la componente transversal, con lo cual atracaremos el buque al muelle.
Fig. 5: Efecto de virar los largos
3.2 Efecto combinado al virar largo y esprín de proa (hacer cabeza)
Con el buque atracado al muelle y cabos largados a popa, si viramos del largo de proa con el esprín de proa firme, la componente longitudinal del esprín quedará anulada con la componente longitudinal del largo, trabajando solo la componente transversal del esprín que hará hacer cabeza al buque sobre la proa, separando la popa del muelle. Más adelante explicaremos como podemos acentuar la separación de la popa utilizando timón y máquina.

Fig. 6: Efecto combinado de largo y esprín de proa
3.3 Efecto al virar largo y esprín de cabezas opuestas (correr el muelle)
Si viramos del largo de proa y del esprín de popa, sus componentes longitudinales desplazarán el buque hacia proa. Si por el contrario viramos del largo de popa y del esprín de proa, entonces el efecto será el contrario.

Fig. 7: Efecto combinado de largo de proa y esprín de popa
4 Elementos de amarre
Para hacer efectivo el amarre de los buques, se hace necesario la instalación de una serie de elementos tanto en tierra (a lo largo de las líneas de atraque) como a bordo (en las zonas de maniobra a proa y popa, además de a lo largo de la cubierta) para que el amarre y fondeo de los buques sea efectivo.
4.1 Elementos en tierra
Bolardos. Son piezas de fundición empotradas en el borde del muelle, alineadas y separadas una distancia regular unas de otras (unos 20 m) a lo largo de una línea de atraque. Se usan para encapillar las gazas de los cabos de amarre de los buques. Es característico es estas una especie de joroba orientada en sentido de tierra, y cuya finalidad es que no se escapen las gazas encapilladas en ellas.
Norays. Este término solo se emplea en España y, en menor medida, en Argentina y México. En el resto se usa la palabra bolardo. Son piezas de fundición y tienen el mismo cometido que los bolardos. Se diferencian de estos en la forma. Los norays tienen forma troncocónica, situándose la parte más ancha en la zona superior, parte que en ocasiones se encuentra atravesada por una barra de acero. Tanto el ensanchamiento superior como la existencia de la barra que la atraviesa son para evitar el desencapillado de los cabos de amarre. Cuando se encapillan en un noray o bolardo varias gazas, es preciso hacerlo de tal forma que cualquiera de ellas pueda ser desencapillada sin tener que mover las restantes. Esto se consigue encapillando la siguiente siempre por dentro de la gaza anterior.
Anillas. Son anillas de acero fuertemente fijadas al borde de los muelles y con la función de hacer firme cabos de menor mena.
Cornamusas. Piezas de acero que constan de una base en la que se afirma una estructura en forma de cornamenta de bovino, la cual cumple la función de tomar vueltas o adujas a un cabo. Este diseño también permite el encapillado de gazas o amarre de cabos con nudos. Su uso suele estar destinado a cabos de poca mena.
Ganchos de liberación rápida. (consultar epígrafe 11.6)

Fig. 8: Diferentes tipos de bolardos
4.2 Elementos a bordo
Bitas. Piezas de acero con dos columnas verticales sobre la misma base. Se sitúan preferentemente en las cubiertas de maniobra de los buques a proa y popa, aunque también es habitual verlas distribuidas a lo largo de la cubierta principal, próximas a la regala. El cabo toma vueltas en forma de ocho o adujas sobre las dos piezas verticales. Los extremos de la base suelen ir provistos de cáncamos donde hacer firme la boza o cadena para abozar las estachas. Los cabos de amarre primero se encapillan en tierra y luego se hacen firmas en las bitas o cornamusas a bordo haciendo adujas sobre ellas.
Cornamusas. Descritas en el punto 2.4.1, también a bordo como elementos de amarre generalmente para cabos de menor mena.
4.3 Elementos auxiliares a bordo
Guía cabos. Elementos colocados en la regala que sirven para dar dirección a las estachas o cables en su salida hacia el muelle por medio de rolines. Pueden ser horizontales o de cilindros.
Monaguillo. Es un elemento que consisten un pedestal con un rolín horizontal en su parte superior. También pueden ser verticales, colocadas sobre pedestales y entonces se llaman monaguillos.
Gateras. Piezas en forma de anillo cerrado, colocadas en las amuras y aletas del buque. Su función es dar paso y dirección a los cabos que van a tierra. La gatera situada justo sobre la roda se denomina Panamá.

Fig. 9: Guía cabos horizontales, verticales o de cilindros y gatera

Fig. 10: Bita en cruz y en doble cruz
Fig. 11: Rolín horizontal y monaguillo
5 Elementos de virado
Molinete. Máquina situada a proa, con eje de giro horizontal, utilizada en faenas de anclas y virado de cabos. Su funcionamiento suele ser electrohidráulico, con una potencia media de 3-5 T, aunque las hay de mayor potencia. En Asturias se le conoce también como chigre. Consta, básicamente, de los elementos citados en la figura 12
Cabrestante. Máquina de eje de giro vertical, con el tambor liso o estriado, empleada a bordo para el virado de cabos en las maniobras de atraque y desatraque.

Fig. 12: Molinete
Mención especial merece una referencia a la diferencia entre el carretel de trabajo y el de estiba. Si hacemos firmes los cabos sobre el carretel de estiba, puede ocurrir que dicho cabo se muerda y eso, aparte de restar efectividad al amarre, supone un grave riesgo para la integridad física del personal involucrado, así como una pérdida de tiempo importante para arreglar la maniobra.
Fig. 13: Estiba correcta e incorrecta en el carretel de trabajo
Todo el conjunto puede ir dotado del sistema de tensión constante; es decir, en todo momento el cabo presenta una tensión idéntica ya que la máquina vira o desvira según disminuya o aumente la tensión ejercida sobre ese cabo dado a tierra. La tensión ejercida sobre una amarra puede aumentar o disminuir por movimientos del buque producidos por viento, corriente, oleaje, interacción de otros buques, etc.
Fig. 14: Cabrestante
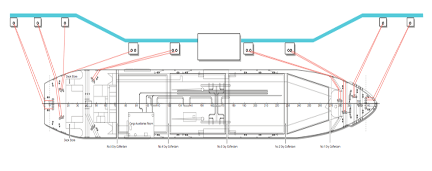
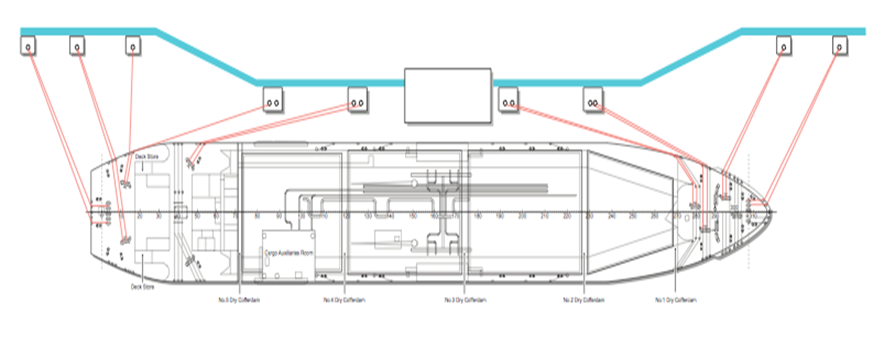
6 Distribución de la maniobra a proa y popa de un buque
Fig. 15: Distribución de la maniobra de proa de un buque
Aunque la distribución puede variar un poco de un buque a otro en función del tamaño y/o necesidades de maniobra, hay unos parámetros que han de respetarse al diseñar la instalación de los elementos de amarre y virado.
Dichos parámetros son fundamentalmente:
– la orientación del eje de giro del molinete con respecto a la entrada de cabos y cables a virar.
– distribución estratégica de los rolines, bitas, gateras, etc. que den el máximo servicio para las necesidades del buque, evitar en lo posible que los cabos o cables atraviesen la cubierta de maniobra, etc. Como se puede observar en las figuras 15 y 16, las bitas de amarre han de estar colocadas en línea con la trayectoria que sigue el cabo desde la gatera hasta el molinete pasando por los rolines.
Fig. 16: Distribución de la maniobra de popa de un buque
Generalmente la cubierta de maniobra de popa suele ser de menores dimensiones que la de proa, por lo tanto aquí es más importante, si cabe, la buena distribución y posicionamiento de todos los elementos de amarre. En muchos casos, los elementos de virado (maquinilla o molinete) se suele suelen sustituir por cabrestantes, sobre todo en buques de menor porte.
7 Maniobra de dar cabos a tierra y hacer firme
Cuando el buque se encuentra en las proximidades del muelle, el personal de maniobra de proa y popa se dispone a dar cabos a tierra siguiendo instrucciones del puente, nunca del personal de tierra. Para realizar esta operación se siguen dos sistemas:
– arriando los cabos hasta un bote del servicio portuario que los lleve hasta el muelle, donde los recogerá el personal de tierra (los amarradores) para encapillarlos en los bolardos,
– o lanzando una guía o sisga a tierra que será recogida por el amarrador. El chicote de a bordo se hace firma en la gaza de la estacha para ser pasada hasta tierra y encapillada en el bolardo o noray.
El amarrador recibirá la estacha del buque por medio de la sisga para encapillarla en el bolardo o noray de tierra. Habrá que estar atentos a que pase la sisga por dentro de la gaza de la estacha encapillada, si la hubiera, para así poder largarla sin problemas.
Fig. 17: Encapillado múltiple correcto
7.1 Abozado del cabo o cable de amarre
Una vez encapillada la estacha en el bolardo en tierra, se pasa a bordo por la bita donde se va a hacer firme por el guía cabos que la conduzca hasta el cabirón del molinete donde le daremos vueltas para virarla. Una vez templado el cabo y siguiendo órdenes del puente se aboza, se sacan las vueltas del cabirón y se toman adujas en la bita quedando el cabo encapillado en tierra y firme a bordo.
Abozar es, por tanto, la acción de sujetar una amarra en tensión mediante un cabo o cadena denominada boza que está afirmado por medio de un grillete al cáncamo de la bita. La estacha se aboza para que, cuando se saquen las vueltas de la maquinilla, mantenga la tensión adquirida al virarla y se pueda pasar a la bita.
El sistema más seguro es emplear dos bozas cruzadas como se indica en la figura 18
Fig. 18: Abozado de una estacha con dos cabos
Otro sistema es emplear un solo cabo para abozar que, aunque no resulta tan seguro como el método anterior, es el que más se utiliza en los barcos.

Fig. 19: Abozado de una estacha con un solo cabo
Si lo que estamos utilizando para amarrar el buque es un cable de acero el proceso de la maniobra es el mismo, pero para abozar se emplea una cadena que, aparte de ser más resistente, evita que el cable se escape por la tensión.
Fig. 20: Abozado de un cable de amarre con cadena
Fig. 21: Largar la estacha virando el mensajero
8 Rotura de cabos de amarre
Cuando una línea de amarre (cable o estacha) es sometida a una gran tensión que supere su carga de rotura, faltará. Esta gran tensión puede ser debida a movimientos involuntarios del buque en el momento que se está pasando la estacha o cable a la bita. Es una situación de alto riesgo para el personal de la maniobra, ya que al faltar un cabo de amarre y debido a la energía almacenada que es proporcional a la carga de rotura de dicho cabo, éste saltará hacia atrás dando un fortísimo latigazo y destrozando todo lo que se encuentre a su paso.
Los cables cuando faltan son capaces de cortar barandillas de hierro como si fueran mantequilla. Por tal motivo, todo el personal que participa en la maniobra de amarre ha de mantenerse en todo momento fuera del alcance del cabo que esté trabajando en ese momento, especialmente cuando se le está sometiendo a una gran tensión, y esto es responsabilidad del oficial encargado de esa maniobra.
Fig. 22: Zonas de peligro cuando un cabo está trabajando
Las siguientes imágenes muestran las zonas de peligro en diferentes configuraciones de la maniobra. También muestran la zona que cubre el cabo al faltar. Al área que barre un cabo con la suficiente fuerza para causar la muerte al personal que se encuentre en el mismo se le denomina zona de peligro (snap back zone). Los chicotes rotos de un cabo se desplazan aproximadamente, a la velocidad del sonido.
Fig. 23: Zonas de peligro cuando falta un cabo
9 Principios para el amarre de buques. Teoría del amarre
El empleo de un sistema de amarre eficiente es esencial para la seguridad del buque, la tripulación, la terminal de carga/descarga y el medio ambiente. El problema para realizar un amarre seguro, que resista todas las fuerzas a las que va a ser sometido el buque, puede ser resuelto con la respuesta a las siguientes preguntas:
– ¿qué fuerzas actúan sobre el buque?
– ¿cuál es la distribución de esas fuerzas sobre los cabos?
– ¿cómo se puede realizar un buen amarre para contrarrestar las fuerzas que actúan sobre cada cabo? – Tipos de amarre
9.1 Fuerzas que deben soportar las amarras
Un buque amarrado está sometido a varias fuerzas que debemos tener bien presentes. Las más destacadas son:
– viento y corrientes
– oleaje
– resonancia por fenómenos de onda larga (del orden de minutos)
– mareas
– paso de otros buques
– carga / descarga del buque
10 Tipos de amarre
10.1 Amarre en eslora
En este tipo de amarre se emplean traveses y esprines.
Fig..24: Amarre en eslora (traveses y esprines)
Los petroleros y gaseros cargan y descargan a través del manifold por lo que esa zona es la única que debe permanecer en contacto con el muelle. Por consiguiente, los atraques de este tipo de buques suelen ser una plataforma de carga corta, a donde irán los esprines, al final de un muelle que se extiende desde la orilla hasta aguas de suficiente profundidad como para que el petrolero tenga sonda suficiente. Los traveses se darán a duques de Alba.
En la figura 25 se presenta el modelo de amarre en eslora, que como se puede apreciar se compone de traveses para la retención transversal (A) y esprines para la retención longitudinal (B). En este ejemplo se asume que el ángulo horizontal que forman las amarras “q” es cero, y el ángulo horizontal que forman los esprines también es cero.

Fig. 25: Descomposición del modelo de amarre en eslora
Así pues, la capacidad de retención transversal estará asumida por los dos traveses, siendo:
RT= 2A
La capacidad de retención longitudinal la realiza uno de los esprines (el de proa o el de popa), ya que la fuerza longitudinal solo puede ir en un sentido, siendo:
RL=1B
Se mejora la eficacia de la amarra disminuyendo el ángulo vertical y aumentando la longitud de ésta, ya que aumentando al doble su longitud, se divide por 2 la resistencia que tiene que soportar.
Fig. 26: Mejora de la eficacia de la amarra
Como se observa en la figura 26, la tensión horizontal (Th) disminuye un 21% al pasar de trabajar con un ángulo vertical de 26º a uno de 45º.
En los esprines se mejora su eficacia disminuyendo lo más posible el ángulo horizontal.
En cuanto a la distribución de las amarras, se tiende a pasar del sistema tradicional (largos y esprines) a otro sistema de amarre en el que las estachas sujetan al buque en su misma eslora con la utilización tan solo de traveses y esprines. Este método solo es más eficaz que el método tradicional si los ángulos de acometida de las amarras no superan los 15º en el plano horizontal y los 25º en el plano vertical y se puede dar a los traveses la suficiente longitud para que sean efectivos (solo posible en terminales de carga con puntos de amarre en tierra a “duques de alba” suficientemente alejados del buque para que los traveses tengan una longitud apropiada).
10.2 Amarre clásico
En este tipo de amarre se emplean largos y esprines.
Fig. 27: Amarre clásico (largos y esprines)
Las amarras han de estar dimensionadas para poder soportar el arrastre del buque a fin de acercarlo al muelle, poder arrastrarlo a lo largo del atraque y posteriormente soportar los movimientos del buque generados por viento, olas, corriente. La eficacia de las amarras depende de los ángulos vertical q y horizontal b en los que se descompone la acometida de la amarra.
Si nos basamos en un largo de proa, y obtenemos sus componentes tanto en el plano vertical como en el horizontal, podremos deducir el valor, tanto de la retención longitudinal (RL) como de la retención transversal (RT), que serán función principalmente de la carga de rotura y de los ángulos vertical y horizontal con que trabajen, según muestra la figura 2.28.
Fig. 28: Descomposición de la retención transversal (Rt) y longitudinal (Rl) del largo de proa
CR: carga de rotura del cabo/cable.
a: ángulo horizontal formado entre la proyección horizontal del cabo y el través.
b: ángulo horizontal formado entre la proyección horizontal del cabo y la línea proa-popa. a y b son ángulos complementarios.
q: Ángulo vertical que forma el cabo/cable con su componente vertical.
En el plano vertical, la componente horizontal de efectividad de la amarra será:
CH = CR.cos q
y la componente vertical:
CV = CR.sen q
En el plano horizontal, la componente longitudinal en sentido proa-popa será:
CL = CR.cosq.cos b
y la componente transversal en sentido Br – Er. será:
CT = CR.cos q.sen b
En la figura 29 se presenta un modelo de amarre “clásico”; es decir, empleando largos y esprines. En este caso también asumimos que el ángulo horizontal que forman los esprines es cero (por tanto, solo tienen componente longitudinal), y daremos valores tanto a los ángulos verticales como horizontales que forman las amarras; así, valor del ángulo vertical q =30º, y valor del ángulo horizontal b = 30º.
Fig. 29: Descomposición del modelo de amarre clásico con largos y esprines
La retención transversal estará a cargo de la componente transversal de cada uno de los largos (At) y la retención longitudinal estará compartida por la componente longitudinal de uno de los largos (Al) más el esprín correspondiente.
La retención transversal estará a cargo de la componente transversal de cada uno de los largos (At) y la retención longitudinal estará compartida por la componente longitudinal de uno de los largos (Al) más el esprín correspondiente.
RL = A x cos θ x cos β
RT = A x cos θ x sen β
En el ejemplo de la figura 2.29, θ = 30º y β = 30º
La retención transversal es igual a la componente transversal de los largos.
RT = 2 x AT RT = 2 A x cos 30º x sen 30º = 0.87 A
La retención longitudinal es igual a componente longitudinal del largo más el esprín.
RL = 1AL + 1 B = A x cos 301 x cos 30º + B x cos 30º = 0.76 A+ 0.87 B
10.3 Amarre combinado
Cuando el diseño de la línea de amarre lo permite, se puede realizar un modelo de amarre que resulta de la combinación de los anteriormente vistos con largos, traveses y esprines.

Fig. 30: Amarre combinado
Para calcular la capacidad de retención de las amarras:

Fig. 31: Cálculo de la capacidad de retención de las amarras
- La retención longitudinal se calcula para los cabos de proa y popa.
- Solo intervienen la componente longitudinal de los largos (Al) y los esprines.
- En los esprines, el valor del ángulo horizontal b, se considera cero.
- Los ángulos horizontales a , b son complementarios; es decir, sen a = cos b
- Se aplica un coeficiente de seguridad de valor = 0,55
Ry PR = (Número de componentes transversales a proa) + (Número de traveses a proa)
RYPR = 0,55x(Nº x CR x senb x cosθ) + Nº x CR x cosθ
- La retención transversal se calcula para los cabos de proa y popa.
- Solo intervienen la componente transversal de los largos (At) y los traveses.
- En los traveses, el valor del ángulo horizontal b θ se considera 90º.
- Los ángulos horizontales b , θ son complementarios; es decir, sen b = cos θ
- Se aplica un coeficiente de seguridad de valor: 0,55.
11 Sistemas de amarre automatizados
El sistema tradicional es y ha sido fiable y ha funcionado bien, pero ahora está de alguna manera desfasado con el nuevo enfoque de la industria marítima, que supone mejoras continuas en la productividad y la eficiencia.
Se calcula que un buque permanece atracado entre un 20 y un 30% de su vida útil, dependiendo del tipo de barco y del tráfico a que se dedique y precisamente, de todos los sistemas de los que dispone un buque actual (gobierno, posicionamiento. comunicaciones, etc.) el que menos ha evolucionado ha sido, sin duda, el de atraque.
A continuación, veremos diferentes sistemas de amarre automáticos o semiautomáticos. Están basados en diferentes principios, pero presentan, en mayor o menor medida, ventajas respecto al sistema tradicional:
+ mantienen al buque inmóvil (aún con cierta flexibilidad) y soportan y corrigen las cargas dinámicas que en la actualidad son absorbidas por los largos y esprines y que obliga a arriar y largar cabos constantemente buscando una tensión constante.
+ las operaciones de atraque y desatraque se agilizan extraordinariamente.
+ no hay interrupciones ni en las tareas ni en los descansos de los tripulantes.
+ control continuo de fuerzas y tensiones durante toda la maniobra y período de atraque del barco.
+ se minimiza el riesgo de lesiones por accidente en las personas que intervienen en la maniobra, tanto a bordo como en tierra. Disminuyen los incidentes y accidentes que pueden llegar a ser mortales en las operaciones de atraque y manejo de los cabos con los que se realizan.
Fig. 32: Causas y consecuencias de accidentes en la maniobra de atraque
+ mejor aprovechamiento de los muelles. Se reduce el espacio de muelle necesario para atracar los barcos sin necesidad de ampliarlos para que entren barcos más grandes.
+ reducción del personal portuario necesario en base a la automatización de las operaciones.
+ reducción de las emisiones contaminantes por parte del barco al reducirse el tiempo empleado en la maniobra y por parte de los remolcadores por idéntica razón.
11.1 Sistema de atraque por vacío
Este sistema de atraque utiliza grandes ventosas en las que se crea un vacío para adherirlas a los costados del barco. Pueden estar ubicadas en el mismo muelle, lo más habitual, o a bordo. Cada ventosa ejercerá un vacío de 20 mT, pero pueden agruparse en grupos de tres o cuatro para que la succión total sea de 60 u 80 mT.
No tienen por qué agruparse a lo largo de toda la eslora. Bastará con que se sitúen a un 25 – 30% máximo de los extremos de proa y popa para que cumplan su cometido. Es decir, teóricamente bastaría con que la longitud del muelle mida un 60% de la eslora total del barco.
El sistema es retráctil, permanece detrás de la línea de defensa para resguardarse de impactos durante el atraque, y una vez que el buque está en posición, las ventosas son pegadas. El amarre se produce en menos de un minuto, lo cual reduce el tiempo de uso de prácticos y remolcadores, además de disminuir las emisiones de CO2 al reducir el tiempo de uso de la máquina propulsora. Por otra parte, el sistema cuenta con un sistema de amortiguación que absorbe el empuje hacia el muelle.
Vienen empleándose con éxito desde el año 2004 en barcos de distinto porte y tamaño, desde un Ro-Ro danés de 91 m. de eslora y 4.900 mT de desplazamiento hasta barcos portacontenedores PANAMAX de 310 m. de eslora y 210.000 mT de desplazamiento.
Fig. 33: Sistema de atraque por vacío CAVOTEC™
Como se puede ver en la siguiente imagen, el equipo permite un pequeño movimiento vertical que permite hacer frente a movimientos de marea y a cambios de calado debido a operaciones de carga y descarga. Si se llega al punto final del raíl, de forma automática, el sistema desconecta la ventosa y la sube o baja, dependiendo de la situación, y la vuelve a pegar. Este cambio de posición solo se realizaría en el caso de que no hubiera riesgo de dañar el buque o de provocar lesiones a las personas.
A su vez, se permite un pequeño movimiento horizontal y una pequeña inclinación sobre el plano vertical para permitir una ligera escora. También, permite pivotar sobre el plano horizontal, para poder adherirse a buques (o partes del buque) que no estén completamente paralelos al muelle.
Por cada ventosa hay un sistema de generación de vacío. La ventosa está compuesta por los sellos de goma que son rígidos, los cuales absorben las pequeñas oscilaciones del buque, y por unos orificios, por donde se genera el vacío al abrir una válvula que conecta la ventosa con un acumulador de baja presión. En el caso de que la diferencia de presión pudiera dañar las planchas del casco del buque debido a un poco escantillonado de estas (≤ 10 m.), se puede reducir dicha presión.
Los sellos de goma solo absorben los pequeños movimientos. Los movimientos más grandes del buque son contrarrestados por el sistema de amortiguación que componen los cilindros hidráulicos que se encuentran detrás de la ventosa, y la unen al muelle.
Fig. 34: Grados de libertad del sistema de atraque por vacío CAVOTEC™
Finalmente, es importante tener en cuenta que hay unos sensores que miden continuamente la carga de cada ventosa, y que este sistema puede ser operado a distancia por una sola persona. Este sistema de monitorización, al igual que el sistema de vacío, puede funcionar incluso ante una caída energética. Las ventosas no se ven afectadas por los rayos UV. Los sellos de vacío son muy duraderos y lo suficientemente flexibles para hacer frente a la abrumadora mayoría de las superficies del casco que se encuentran normalmente. La superficie no tiene que ser lisa, las ventosas pueden trabajar con desviaciones de las planchas de hasta 25 mm además de perlas y costuras de soldadura. Las deformaciones menores no son normalmente un problema. Generalmente, el sistema trabaja en un rango de temperaturas de -25º a +50º grados centígrados de temperatura ambiente.
11.2 Sistema hidráulico (shoretencion)
Más que un sistema de atraque automatizado es uno que complementa al sistema tradicional de amarras. El sistema se encuentra en el muelle, entre dos bolardos. Un extremo se fija al bolardo/noray, y la parte móvil del sistema se conecta a la línea del buque. El segundo bolardo se utiliza para guiar la amarra que vuelve al buque. También se pueden colocar a bordo del barco.
Este equipo hace un control constante de la tensión, y en caso de que esta se acerque al límite de la tensión máxima de trabajo, que es de 150 toneladas métricas, se avisa al personal implicado para que pueda actuar en consideración. Este sistema de control está en el mismo equipo y funciona con energía solar.
El sistema solo necesita energía en la fase inicial, luego no requiere de más aporte de energía externa para mantener la tensión constante en las líneas de amarre (siempre por debajo de la tensión de trabajo de seguridad). Para un gran buque serían necesarios 4 sistemas shoretension y cada uno tiene un coste de 75.000 € aproximadamente (datos de julio de 2016).
Fig. 35: Sistema shoretension instalado en tierra
Fig. 36: Sistema shoretension instalado a bordo (KRVE™)
11.3 Bolardo semiautomático
La solución presentada por el grupo TTS pretende reducir el personal de puerto necesario para realizar la operación de atraque del buque.
Para lograr dicho objetivo, el bolardo es operado a distancia. Una vez que el buque se ha colocado en su posición, paralelo al muelle y no muy lejos de este, se pone en funcionamiento el sistema. El operario, a través de un control remoto, inclinará el brazo para que, de esta forma, un tripulante pueda encapillar la estacha en el bolardo. Después, el pivote regresará a la posición inicial y se tensará el cabo desde el cabestrante de cubierta.
Durante toda la estancia del buque en puerto, el sistema mantendrá de forma automática la tensión del cabo.
Finalmente, para desatracar, el bolardo se vuelve a inclinar hacia el buque para reducir la tensión del cabo y de esta forma reducir el peligro de accidente para la persona que desencapille el cabo.
El bolardo semiautomático consta de tres sistemas diferentes:
· Sistema hidráulico que permite que el brazo sea telescópico
· Sistema hidráulico para inclinarse
· Sistema eléctrico para poder ser controlado a distancia.
11.4 Vagón metálico
Otra solución presentada por el grupo TTS elimina el uso de los cabos para la operación de amarre. Este sistema de amarre consiste en que un brazo metálico se agarre al casco del buque. Para ello, se debe realizar una pequeña modificación al buque, que deberá disponer en la obra muerta de dos puntos de amarre. Estos puntos de amarre estarán ubicados a popa y a proa del buque y consistirán en un cilindro en una zona hueca del casco.
Se acciona completamente a distancia, a diferencia de la otra solución ofrecida por el grupo TTS, donde un tripulante tenía que encapillar los cabos. Una vez que el buque está en posición, cerca de las defensas, un operario del muelle guía el brazo hacia el bolardo o punto de apoyo del buque mediante un joy-stick. Para el desatraque se utiliza el mismo mecanismo, aunque también se pueden programar las posiciones y que el desamarre y el amarre se realicen de forma automática.
Fig. 37: Bolardo semiautomático
Fig. 38: Vagón metálico
Por lo que se refiere a la situación durante el amarrado, el sistema ofrece una monitorización de la carga con información a tiempo real. Aunque el brazo puede rotar sobre el eje vertical unos pocos grados, el sistema solo puede moverse en la dirección vertical, lo que es un gran inconveniente. Este inconveniente hace referencia a que para que el buque pueda atracar en dicho muelle, la distancia entre sus dos puntos de agarre debe coincidir con la distancia a la que se encuentran los vagones del muelle. De esta forma, se puede dar el caso que un muelle sólo pueda recibir un buque en concreto, o que un buque, de todos los puertos que visita, solo pueda usar este sistema de amarre en uno de ellos.
Fig. 39: Vagón metálico en un buque no tripulado
11.5 Amarre magnético automatizado
Más conocido por sus siglas en inglés como iDL (inteligent Docklocking System), la firma Mampaey™ ha sido pionera en el estudio y aplicación de este tipo de sistema, similar al de vacío CAVOTEC™, pero cambiando este por placas magnéticas.
Actualmente solo se ha generado un prototipo que se está probando a bordo del buque bunker MTS Valburg (2019).
Este buque holandés, de 85 metros de eslora y con una capacidad de 1856 m³ de carga, ofrece combustible a otros buques. Durante la operación de transferencia de combustible se amarra al otro buque, que generalmente tendrá un francobordo superior al del MTS Valburg, mediante el sistema de amarre magnético.
Este sistema que actualmente sólo se utiliza para amarrar ship to ship, es un banco de pruebas para amarrar en puerto también.
Se activa desde el puente del buque y tiene dos unidades a un costado sobre cubierta, una en popa y otra en proa. Cada unidad consta de dos brazos articulados gracias a un sistema hidráulico. Para adherirse al otro buque, en la cabeza de los brazos hay cuatro placas magnetizables.
El sistema magnético es muy simple. En cada placa o célula del brazo hay distribuidos de forma alterna polos positivos y polos negativos, quedando cada polo rodeado por polos opuestos. Una vez accionado el mecanismo, se genera un flujo magnético que permite que el brazo quede adherido al casco del otro buque.
El sistema es completamente automático. Por una parte, detecta el casco de forma automática y se coloca en posición sin la ayuda de los operarios.
Por otra parte, durante el amarre, los brazos se reposicionan automáticamente en función de la variación de calados. Es decir, durante el trasiego de combustible, el buque tanque disminuye su calado, mientras que el buque que recibe combustible tiende a aumentar el suyo. De esta forma la posición inicial de los brazos no es la adecuada transcurrido un cierto tiempo.
Para más seguridad, esta operación no la realizan todos los brazos a la vez, sino que primero se recoloca un brazo, y una vez que este ya está en su posición final y con las células magnetizadas, el otro brazo empieza la operación de cambio de posición (Mampaey.com, 2016a). Por consiguiente, se evita tener que estar continuamente reajustando la tensión de las amarras en operaciones de transferencia ship to ship. Esta operación de cambio de posición de los brazos también sería útil para un amarre en puerto, ya que operaciones de carga/descarga y cambios en el nivel de la marea, harían cambiar la relación de alturas entre buque y muelle.
Finalmente, el último proceso automático es el control contante de las tensiones, dejando como única operación manual el accionamiento.
Fig. 40: Sistema de atraque electromagnético iDL
11.6 Ganchos de amarre de liberación rápida.
Sistema automático que sirve de ayuda para el atraque, para el amarre y para el desatraque. Esta solución es conocida como Quick Release Hooks (QRH), y es un producto de las empresas Mampaey y Trelleborg. No es exactamente el mismo producto, pero en ambos casos hay una integración de sistemas que permite realizar las mismas acciones: controlar, monitorizar, medir y almacenar datos.

Fig. 41: Sistema QRH (Telleborg)
Por lo que al amarre se refiere, se utilizan unos ganchos en lugar de los norays o bolardos tradicionales. Cada unidad puede tener hasta seis ganchos en el caso de Mampaey y cuatro en el caso de Trelleborg. Estos ganchos tienen una movilidad de +/- 45º en el plano horizontal (en el caso de no tener otro gancho al lado hasta 90º) y de +/-20º respecto la línea central en la vertical (Mampaey.com, 2016b). Al ser el número de ganchos variable, será variable la capacidad de amarre de cada unidad. Cada gancho, el cual solo pueden amarrar un cabo, puede llegar a soportar una carga segura de trabajo de 150 toneladas (Trelleborg.com, 2016). Encima de cada unidad, hay un cabestrante con motor de jaula de ardilla que se utiliza para recoger el cabo mediante la guía.
Cada gancho es operado de forma individual y la liberación de estos puede ser mediante control remoto o de forma manual. Para la liberación manual se puede utilizar un sistema de palanca que permite una liberación con un mínimo esfuerzo, o un botón que se halla en la parte trasera de la unidad. Esta forma de liberación solo es recomendable utilizarla en caso de avería, debido a que para ello se debe estar cerca de los ganchos, lo que supone un riesgo de lesiones en caso de rotura de las amarras.
Para ello, el QRH (Quick Release Hooks) puede operarse a distancia desde un panel de control ubicado en la sala de control del puerto, gracias a la incorporación de un sistema neumático, hidráulico o eléctrico. El panel de control puede ser un panel físico con interruptores o bien una interfaz gráfica en la pantalla del ordenador. A su vez, la liberación se puede hacer de forma individual o simultáneamente. Sin embargo, la única operación que puede realizarse a distancia es la de la liberación, ya que para hacer firme el cabo en el gancho y para restablecer el gancho a su posición inicial una vez utilizado, es necesario un operario. Esto sí, ambas acciones son poco peligrosas; en la primera el cabo aún no tiene tensión y en la segunda ya no hay cabo.
El QRH puede funcionar en los entornos más extremos, habiéndose diseñado series especiales para dos en concreto:
– Soportar temperaturas de hasta – 50ºC.
– Operar en terminales de carbón y hierro. En estas terminales se generan partículas de polvo que se acumulan sobre el equipo y pueden provocar que este se atasque. No obstante, este problema no lo tienen los ganchos de amarre debido a que están adecuadamente protegidos.
Aunque no sea ninguna de las opciones anteriores, el QRH se utiliza bastante en terminales de LNG, más concretamente, solo los ganchos de Trelleborg copan el 70% de dicho mercado. Entre las terminales que usan estos ganchos se encuentra la de Escobar (Argentina) y la de Dubai (Trelleborg.com, 2016).
12 Sistemas automáticos de aproximación al atraque (BAS)
Los sistemas automáticos de aproximación al atraque (BAS por las siglas en inglés de Berthing Approach System) aúnan los datos imprescindibles para el maniobrista mediante sensores laser con una gran pantalla LED para que los prácticos y el personal de a bordo tomen las mejores decisiones, en base a información actualizada al instante, para conseguir una maniobra de atraque rápida y segura.
Durante la maniobra de atraque, las enormes pantallas LED pueden emplearse para proyectar datos sobre la aproximación y atraque tales como la distancia, la velocidad con la que el barco se está acercando al muelle y el ángulo al mismo. Una vez que el barco está atracado y en contacto con las defensas, el Sistema supervisa los posibles desplazamientos y movimientos no deseados. A su vez, podemos ajustar el sistema con diferentes parámetros de seguridad que, una vez sobrepasados, emitirán una alarma.
La pantalla LED, como hemos visto, proporciona datos de interés visibles a una distancia más allá de 300 m. en cualquier condición meteorológica, y está certificada para funcionar sin riesgo en zonas de atmósferas peligrosas.
El sistema de vigilancia medioambiental (EMS – Environmental Monitoring System) mide y graba datos meteorológicos y oceanográficos desde varios sensores: velocidad y dirección del viento, humedad, presión atmosférica, temperatura del aire…También es posible integrar en el sistema otros parámetros menos comunes tales como radiación solar, altura de la nubosidad, dirección y velocidad de las corrientes, temperatura del agua, altura y período de las olas, dirección de las corrientes, etc.
Con el EMS se puede predecir el comportamiento del barco lo cual hace más segura la maniobra de atraque. Toda la información puede ser consultada a través de tablets, teléfonos móviles u ordenadores portátiles o fijos.
Este sistema está plenamente implantado en las terminales de VLCC de Fujairah y en la de grandes graneleros de Sâo Luís, Brasil.
Fig. 42: Terminal VLCC de Fujairah
ForoNaval© 21/10/2023
TODOS LOS DERECHOS RESERVADOS.
Prohibida su reproducción total o parcial sin permiso o mención a sus autores.































Muy detallado! Felicitaciones! Asi todos podemos comprender…